Skip to main content

IMP-45618B,

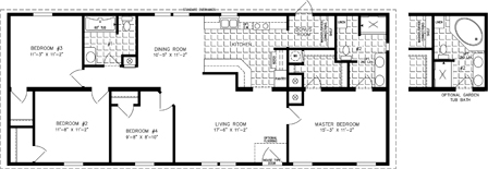
 The Imperial

1493

Sq. ft.

4

Bedrooms

2

Bathrooms

28' x 56'

Exterior Dimensions

About This Floorplan

Overview

At just under 1,500 square feet, our Imperial IMP-45618B model provides owners with a little bit of everything and a definitively luxurious feel. Four bedrooms and two full bathrooms offer plenty of space for guests and family members, allowing each to have their own privacy. Those who enjoy spending time in the kitchen will love the functionality of its design, which optimizes storage space and includes a dining area.

Floorplan Details

Square Footage

1493

Bedrooms

4

Living Rooms

2

Bathrooms

2

Laundry Rooms

1

Exterior Dimensions

28' x 56'

Request Information