Skip to main content

IMLT-3487A,

 The Imperial Limited

1152

Sq. ft.

3

Bedrooms

2

Bathrooms

24' x 48'

Exterior Dimensions

About This Floorplan

Overview

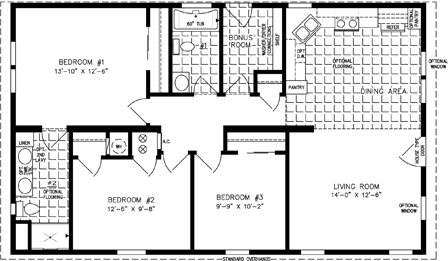
The optional front porch of the IMLT-3487A double wide manufactured home brings guests into an extensive 17’ 9” x 11’ 10” living room space, which extends effortlessly into the dining area thanks to a thoughtful open floor plan design. The 36” high bar located at the edge of the kitchen makes a wonderful entertainment station and additional seating for guests, as well as a source of extra counter space for cooking. With three bedrooms and two full baths, this home has it all.

Floorplan Details

Square Footage

1152

Bedrooms

3

Living Rooms

1

Bathrooms

2

Laundry Rooms

1

Exterior Dimensions

24' x 48'

Request Information