Skip to main content

IMP-45212A,

 The Imperial

1248

Sq. ft.

3

Bedrooms

2

Bathrooms

28' x 52'

Exterior Dimensions

About This Floorplan

Overview

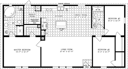
Featuring an idyllic morning room and plenty of space for entertainment, our IMP-45212A model is a double wide manufactured home with no shortage of desirable perks. A small set of stairs and charming covered entryway provides a welcome sight for guests and owners alike. The master bedroom, which clocks in at 15’ 5” x 11’ 2” offers plenty of space for owners to unwind, and includes a smaller ensuite bathroom for convenience. Two additional bedrooms and a second full bath gives this model the advantage of being well-suited to a variety of needs.

Floorplan Details

Square Footage

1248

Bedrooms

3

Living Rooms

1

Bathrooms

2

Laundry Rooms

1

Exterior Dimensions

28' x 52'

Request Information