Skip to main content

TNR-5573B-35701,

 The TNR

1530

Sq. ft.

2

Bedrooms

2

Bathrooms

28' X 57'-4"

Exterior Dimensions

About This Floorplan

Overview

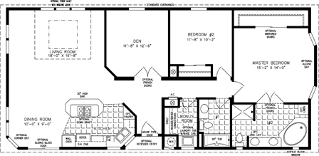
At 1,530 square feet, our TNR-5573B-35701 double wide modular home is designed to impress. A bevy of customizable options and add-ons let you select your level of luxury, ranging from the addition of a large 8’ 0” x 26’ 8” porch to craftsman cabinets, wine cabinets, french doors, and box bay windows. The master bedroom, which is 16’ 7” x 13’ 0” in size, includes a spacious walk-in closet and an ensuite bathroom with an optional diplomat shower. Truly a paragon of functional but upscale living, this model can be outfitted to suit your aesthetic.

Floorplan Details

Square Footage

1530

Bedrooms

2

Living Rooms

1

Den

1

Bathrooms

2

Laundry Rooms

1

Exterior Dimensions

28' X 57'-4"

Request Information