Skip to main content

TNR-46017W,

 The T N R

1840

Sq. ft.

3

Bedrooms

2

Bathrooms

32' x 60'

Exterior Dimensions

About This Floorplan

Overview

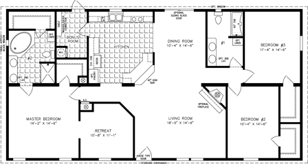
The master bedroom of the TNR-46017W double wide modular home is a true escape from the world. At 14’ 2” x 14’ 6”, this executive room includes not only an ensuite master bath but also an attached retreat separate from the rest of the home. With ample space for privacy, this model also features two additional bedrooms, a second full bath, living room, dining room, laundry space, and a modest kitchen. For added luxury appeal, owners can opt in for a living room fireplace.

Floorplan Details

Square Footage

1840

Bedrooms

3

Living Rooms

1

Den

1

Bathrooms

2

Laundry Rooms

1

Exterior Dimensions

32' x 60'

Request Information