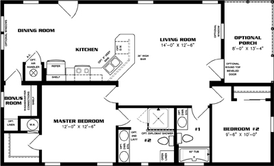
IMLT-6361B,
The Imperial Limited



1067
Sq. ft.
2
Bedrooms
2
Bathrooms
28' X 36'/44'
Exterior Dimensions
Floorplan Details
Square Footage
1067Bedrooms
2Living Rooms
1Bathrooms
2Laundry Rooms
1Exterior Dimensions
28' X 36'/44'