Skip to main content

IMP-46013B,

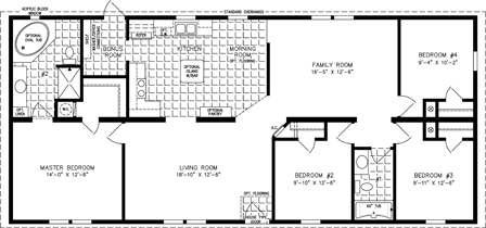
 The Imperial

1600

Sq. ft.

4

Bedrooms

2

Bathrooms

28' x 60'

Exterior Dimensions

About This Floorplan

Overview

Ideal for hosting family gatherings and entertaining, the IMP-46013B double wide modular home offers owners 1,600 square feet of thoughtfully designed space. The home includes four total bedrooms and two full baths, as well as a family room, living room, and kitchen with a cozy morning room. The master bedroom features an ensuite bath with optional oval tub, as well as a spacious walk-in closet.

Floorplan Details

Square Footage

1600

Bedrooms

4

Living Rooms

2

Bathrooms

2

Laundry Rooms

1

Exterior Dimensions

28' x 60'

Request Information