Skip to main content

IMP-2421A-39900,

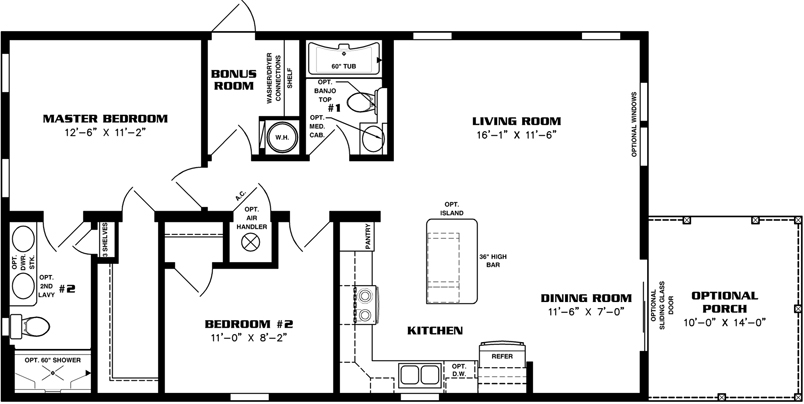
 The Imperial

1008

Sq. ft.

2

Bedrooms

2

Bathrooms

24' X 42'

Exterior Dimensions

About This Floorplan

Overview

From counter tops and back splashes to cabinet finishes and fireplace options, the Imperial IMP-2421A-39900 double wide manufactured home is a fully customizable dream space. At just over 1,000 square feet, this cozy abode includes a master bedroom with an ensuite bath as well as a secondary bedroom and full guest bathroom. The bonus room is able to be utilized as a laundry area thanks to the washer and dryer hookups, and owners can choose to add an optional porch if they’re hoping to spend ample time enjoying the outdoors.

Floorplan Details

Square Footage

1008

Bedrooms

2

Living Rooms

1

Bathrooms

2

Laundry Rooms

1

Exterior Dimensions

24' X 42'

Request Information